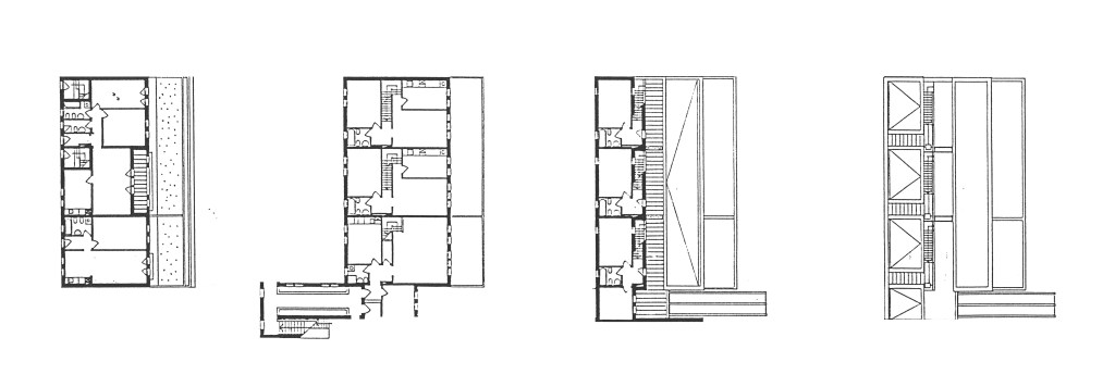
Il progetto fa parte di un piano per l’edilizia economica e popolare realizzato da imprese private e cooperative. Situato in una zona periferica di Mestre, tagliata fuori dalle direttrici del recente sviluppo urbano della città, è stato concepito come un isolato indipendente, che organizza sia i volumi costruiti che gli spazi vuoti. I volumi variano da sue a quattro piani residenziali (più un livello di garage) e comprendono 86 alloggi (simplex e duplex), disposti in modo da garantire a ogni abitazione l’accesso privato diretto dall’esterno, attraverso un sistema di circolazione pubblica a piano terra con prolungamenti al primo piano. Gli edifici sono realizzati con basamento in blocchi di cemento prefabbricato, mentre la parte superiore è trattata con intonaco tradizionale.
Committente: CEV
Importo: 6 miliardi di Lire Superficie: 38 334 mc
Periodo: 1985 – 1990
Progettisti: G. Macola, G. Camporini con E. Badeschi, C. Crotti, S. Dainese, P. Dal Sasso, D. De Vecchi, S. Estori









