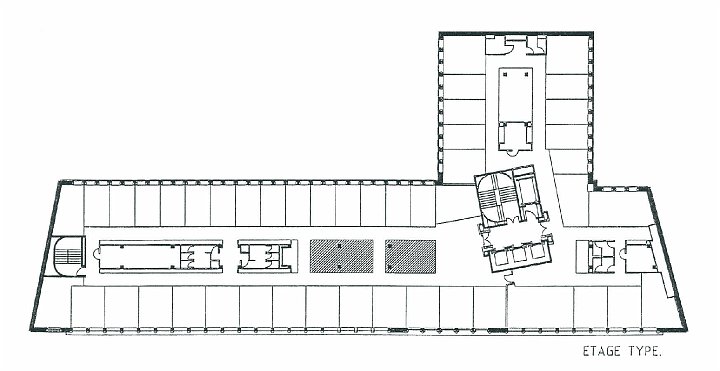
Rifacimento di edificio per uffici costruito negli anni ’50 vicino all’Etoile. Il progetto sostituisce completamente le facciate dell’edificio esistente, restituendogli un’immagine a scala urbana, e recupera un giardino attrezzato, modificando completamente il sistema distributivo del piano terra.
Committente: SOGEPROM (Societé Générale)
Importo: 37 miliardi di lire
Superfici: 12.000 mq
Periodo: 1993 – 1998
Progettisti: G. Valle, G. Macola, F. Urquijo con N. Macola, F. Castro, C. Dario, J.P. Franceschinis

















