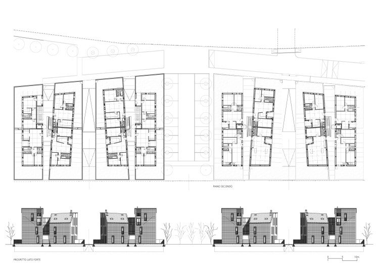
L’intervento ricade nell’ambito del Piano per l’Edilizia Economica e Popolare del Comune di Venezia. Luoghi con forte valenza storica sociale e ambientale sono occasione per superare l’indeterminatezza del territorio “diffuso”. Il progetto si misura con il grande spazio verde del Forte adiacente, dove l’indifferenziazione dell’abitato si consolida in un bordo definito. I due lotti sono costituiti da due blocchi di edifici e ogni manufatto è a sua volta diviso in due corpi uniti dai vani scala. Le costruzioni si piegano in pianta e in sezione, costituendo dilatazioni e compressioni negli spazi aperti. Questo movimento unito alla giacitura perpendicolare del Forte, mette in atto una relazione visiva e funzionale tra la zona residenziale e l’area del Forte.
Committente: COIPES-CEV
Importo: 4.400.000 €
Superficie: 5500 mq
Periodo: 2004-2010
Fotografie: M. Zanta
Progettisti: G. Macola, A. Zanetti con M. Lazzaro, P. Piccinin, E.Gaggiato















