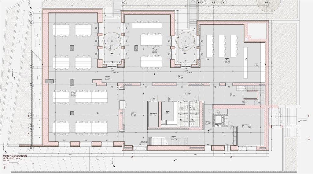
Ristrutturazione dell’Ex Centrale del Latte con conservazione del nucleo originale degli anni ’30 per la realizzazione di un Centro Civico di quartiere con laboratori, sedi delle associazioni, bar, sale riunioni e auditorium per 100 posti. Sistemazione delle aree esterne per la realizzazione di un parco di 4.500 mq e di una piazza per il quartiere.






















