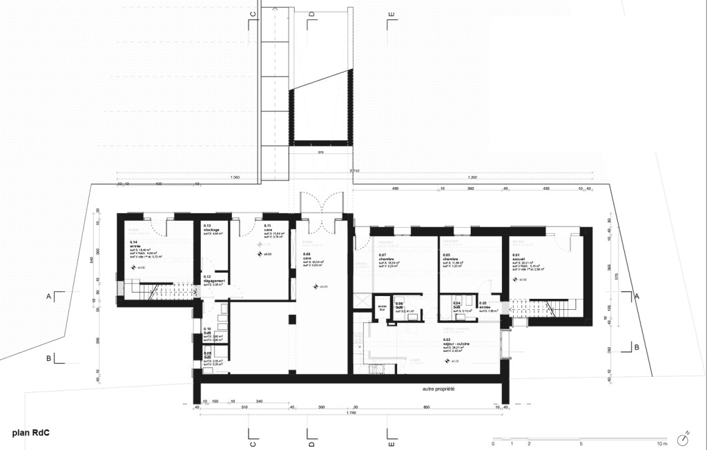
T
Committente: Privato
Importo presunto: 700.000 di euro
Periodo: 2020
Superficie Piano: 390 mq
Progettisti: G. Macola, P.Melloni con M. Minto
T










Committente: Privato
Importo presunto: 700.000 di euro
Periodo: 2020
Superficie Piano: 390 mq
Progettisti: G. Macola, P.Melloni con M. Minto