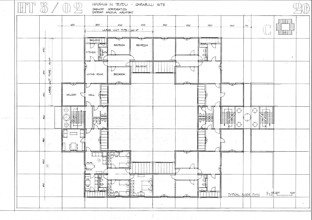
Progetto campione di 500 alloggi a Quaraboulli
Studio per un sistema industrializzato per realizzare 5.000 alloggi nella regione di Tripoli e 7.000 nella regione di Bengasi. Il sistema prevedeva la realizzazione di impianti di produzione di componenti prefabbricati pesanti sul posto. In applicazione dello studio è stato progettato un intervento campione per 500 alloggi a Quaraboulli vicino a Tripoli con urbanizzazioni, viabilità e parcheggi, servizi pubblici, commerciali e religiosi, spazi collettivi e di vicinato e sistemazioni a verde. L’intervento è stato realizzato successivamente dai partner coreani solo per la parte residenziale ed in maniera difforme rispetto al progetto originario.
ELENCO REALIZZAZIONI
Committente: VALDADIGE SpA – Daewoo Corporation Periodo: 1982-1984
Progettisti: G. Macola con S. Marpillero













