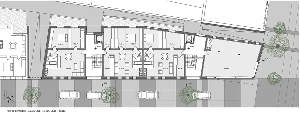
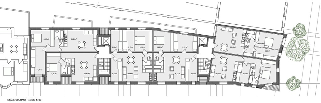
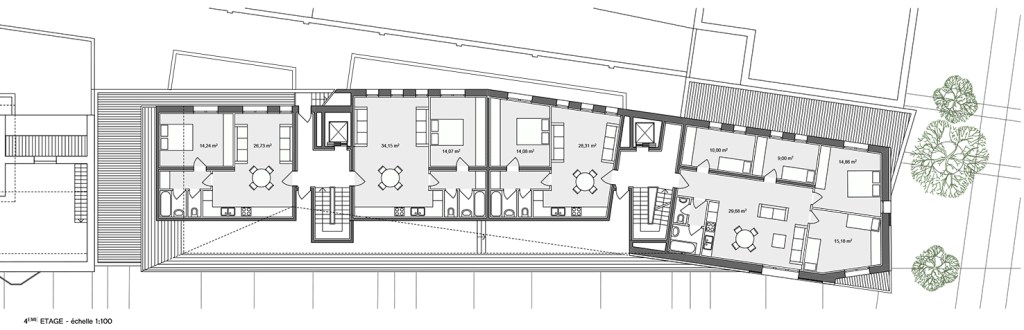
Concorso di progettazione – 3° classificato
Committente: Bruxelles
Periodo: 2013
Progettisti: G. Macola, Sinergo SpA, Studio Plichi Srl con M. Lazzaro, F. Ferrari, M. Sonego, M. Ricci – Studio Ricci Spaini Architetti Associati Srl, A.C.EL G.L. Morozzo con V. Romano (Bruxelles), Adem Bureau d’Etudes – (Mons)














